Brand-new home to be developed in Elisenheim

Ref # 2459563
N$3,980,000
Property Details
4 Beds
5 Baths
2 Garages
248.3m²
575.5m²

Elisenheim Lifestyle Estate

Brand-new home to be developed.

Building will begin once a purchaser is secured.

CONTEMPORARY 4 BEDROOM DOUBLE-STOREY HOME WITH A POOL.

FOR SALE

Privately Registered

This modern double-storey residence has been carefully planned to combine space, comfort, and functionality. Designed for relaxed family living or investment, the home features generous interiors, lifestyle amenities, and strong security. Walking distance to the Elisenheim Shopping centre.

PROPERTY SIZE

• Total erf: 575.5 m2

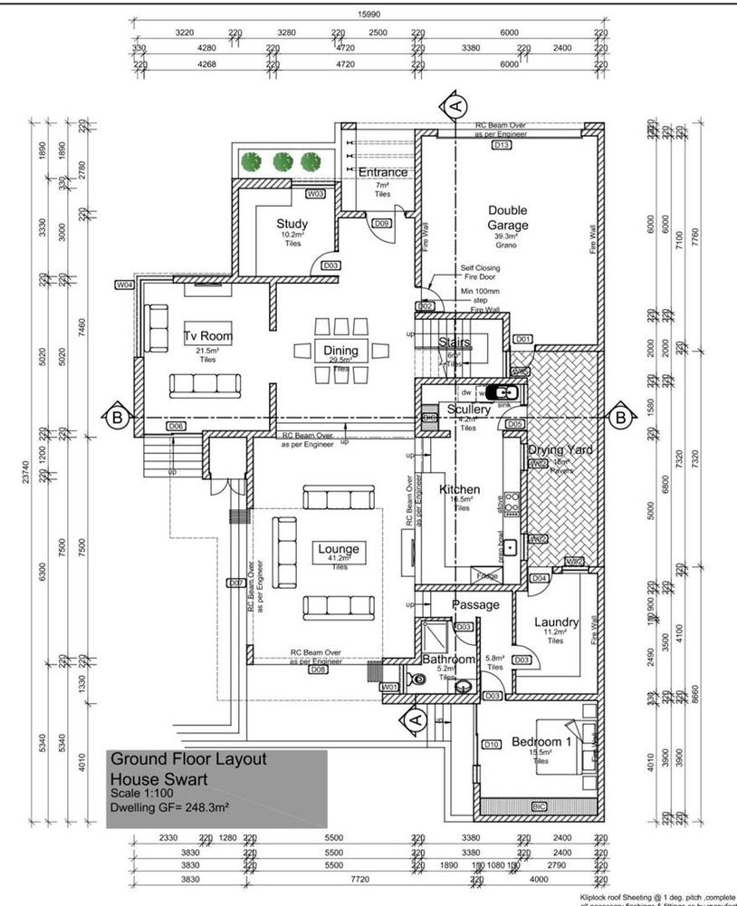
• Ground level: 248.3 m2

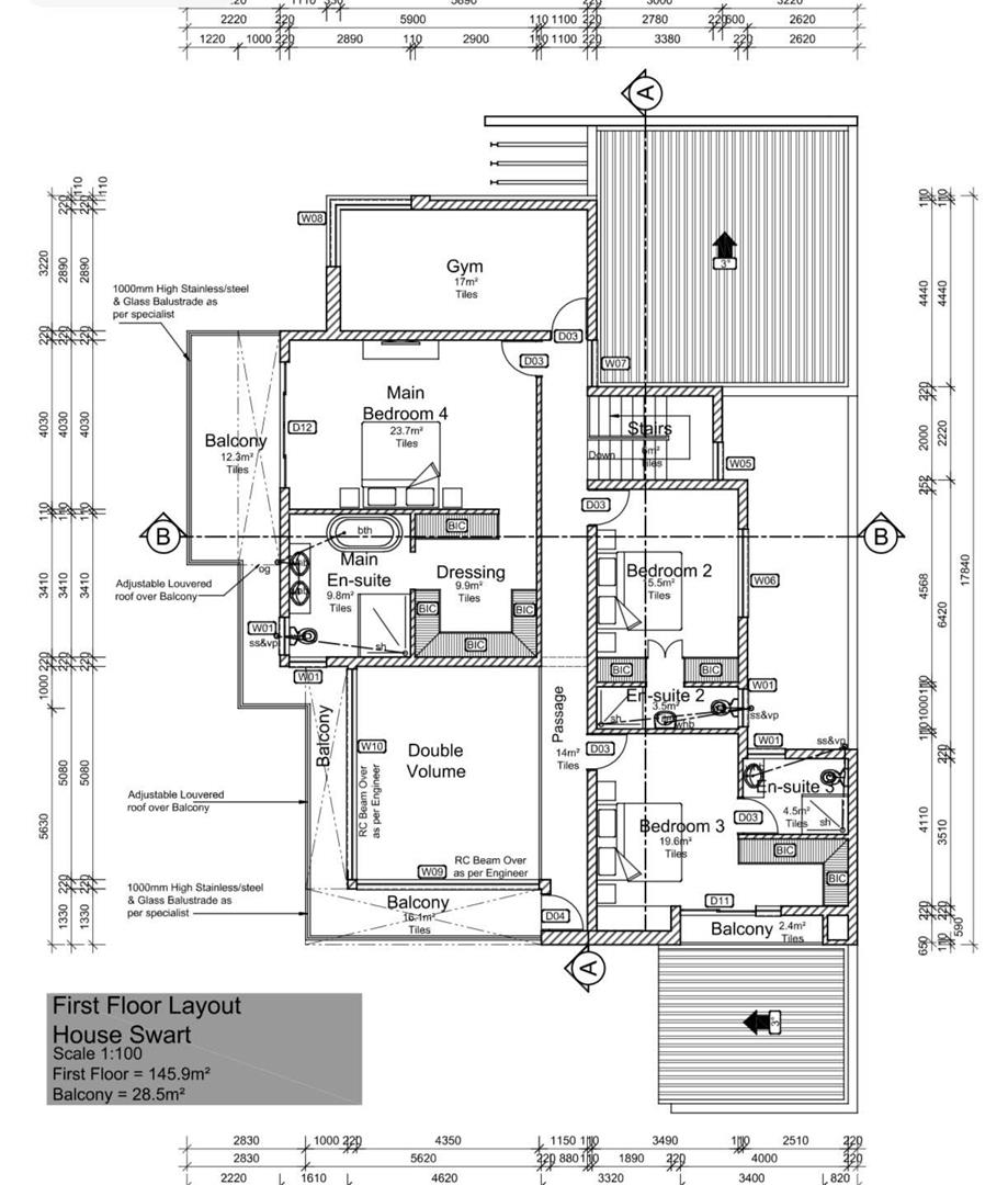
• Upper level: 145.9 m2

• Balcony area: 28.5 m2

•. Double Garage: 39.3 sqm

HOME FEATURES

Lower Level

• Guest bedroom

• Guest bathroom

• Spacious open-plan kitchen with

granite tops

•. Separate scullery

• Spacious Dining and living areas

• Separate TV lounge

• Separate Study

• Separate Laundry

•. Drying yard

• Double automated garage

Upper Level

• Three en-suite bedrooms

The Main Bedroom has a full

Bathroom and Dressing room.

• Private gym room / Play room

• Balconies with outdoor access

SECURITY & OUTDOOR FEATURES

• Electric fencing

• Alarm system

• Fully paved yard

• Swimming pool

• Ample additional parking

ADDITIONAL COMFORTS

• Air-conditioning throughout

For further details or to arrange a viewing of the erf.

Property Features
Property Type
House
Bedrooms
4
Bathrooms
5
Garages
2
Floor Size
248.3m²
Land Size
575.5m²
Living Area
1
Share this Property
Make an enquiry
Interested in this property? Please fill in your details below, and we will contact you as soon as possible.
By clicking on "submit" you agree to our privacy policy.
You may also be interested in these properties
N$ 2,820,000
4
3
2
House for sale in Omeya Golf Estate
4 Bedroom House For Sale In Omeya Golf Estate
Golf estate lifestyle with clubhouse dining, village pharmacy and child shuttle in peaceful Omeya — covered patio, swimming pool and scullery-equipped kitchen; four bedrooms, three bathrooms, double garage.
N$ 4,900,000
Reduced
3
2
1
466m²
521m²
House for sale in Elisenheim
Double Story House For Sale In Elisenheim
Resort-style family living in Elisenheim Lifestyle Estate, effortless indoor-outdoor flow to pool and deck, double-volume living, custom wine storage, and three en-suite bedrooms with private balconies.
N$ 3,750,000
Reduced
3
2
2
House for sale in Suiderhof
3 Bedroom House For Sale In Suiderhof
Peaceful Suiderhof retreat tucked behind mature trees, offering tranquil indoor-outdoor living, a water-wise garden and high-ceiling lounge. Private office with separate entrance, three bedrooms, two bathrooms, double garage.